austin modern home floorplans austin sustainable house modern homes for sale in austin modern home photos austin sol austin on facebook contact sol austin for modern home information
Water Conservation Material Selections Energy Generation Net Zero Energy Austin Site Stewardship  

Modern, Sustainable House Plans

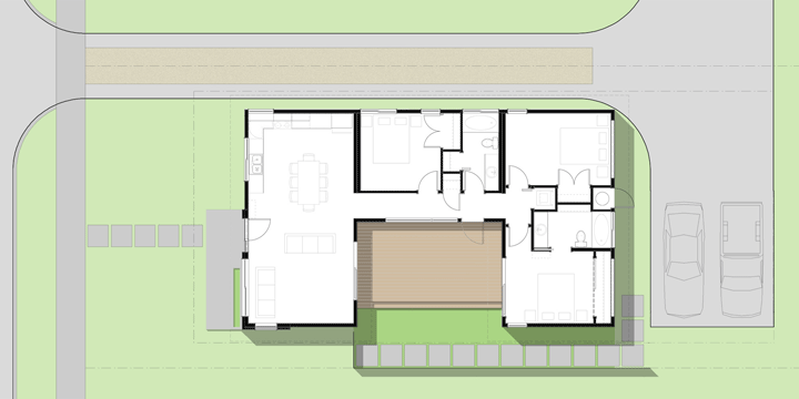
1240 MC Plan: An incredible flow inside to out. Modern architecture that creates a private central courtyard.

Specific design amenities:
  • off street rear parking
  • open living, dining and kitchen space
  • living room and master bedroom open to private central courtyard
Availability Directions to Sol
Neighborhood Map Home Types Sol Austin
1127 Perry Road
Austin, TX 78721

512.374.0946 x 29
Net-Zero Energy Formula
Water Conservation
Site Stewardship
Material Selections
Financial Model
Why Sol? Sol balances the financial and environmental impact of sustainable development with its political merits and implications. Visit krdb.com Designed by KRDB, built by beck-reit and sons Designed by KRDB  Built by Beck Reit and Sons
“As architects, we have a responsibility to take a longer term view of development and conceptualize more holistic, sustainable models.“
– Chris Krager, KRDB