austin modern home floorplans austin sustainable house modern homes for sale in austin modern home photos austin sol austin on facebook contact sol austin for modern home information
Water Conservation Material Selections Energy Generation Net Zero Energy Austin Site Stewardship  

Modern, Sustainable House Plans

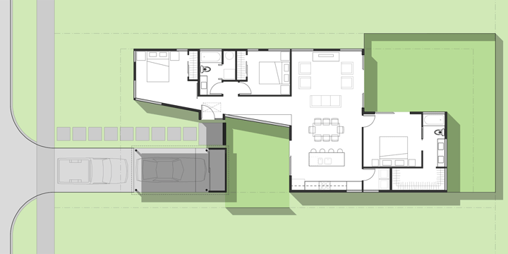
1433 Plan: A Modern floor plan that makes full use of its site. Ideal for outdoor living, and yet, using the latest Green building techniques.

Specific design amenities:
  • public entry courtyard
  • private courtyard at master.
  • front parking with storage
  • open living, dining, kitchen area
  • generous private master suite

Availability Directions to Sol
Neighborhood Map Home Types Sol Austin
1127 Perry Road
Austin, TX 78721

512.374.0946 x 29
Net-Zero Energy Formula
Water Conservation
Site Stewardship
Material Selections
Financial Model
Why Sol? Sol balances the financial and environmental impact of sustainable development with its political merits and implications. Visit krdb.com Designed by KRDB, built by beck-reit and sons Designed by KRDB  Built by Beck Reit and Sons
“As architects, we have a responsibility to take a longer term view of development and conceptualize more holistic, sustainable models.“
– Chris Krager, KRDB